Добро пожаловать на http://vipplan.ru

Випплан Электросталь - это тысячи проектов домов в нашем каталоге!

Вы всегда сможете найти для себя проект дома вашей мечты! Даже если этого не случилось, мы готовы в любую минуту предложить проект индивидуального дома.

Забыли пароль?
Вы еще не регистрировались?

Перейдите по ссылке ниже на страницу регистрации.

Регистрация...

Внимание!!!

В проектную документацию могут быть внесены изменения любой сложности, в соответствии в Вашими пожеланиями!

Полезные статьи

Перекрытия в доме

Перекрытия – одно из важнейших составляющих строящегося дома. Это горизонтальная внутренняя защитная конструкция, разделяющая по уровню смежные помещения дома. По назначению выделяют подвальные, межэтажные и чердачные перекрытия. При проектировании домов и зданий различного назначения, требования к межэтажным перекрытиям определяются их местоположением и функциями разделяемых помещений: надподвальные, межэтажные, чердачные и т.д....

Системы утепления фасада

Основные тепловые потери происходят через стены, фундамент и крышу. Уменьшить их можно с помощью утеплителя, создав внутри дома оптимальный для жизни климат, с достаточно ровным температурным режимом и низкой влажностью....

Проекты домов и коттеджей > Каталог проектов домов > Дом с мансардой и эркером Vg1095

Дом с мансардой и эркером Vg1095

Дом с мансардой и эркером
Зарегистрируйтесь

Проект № Vg1095


Техническое описание
Общая площадь: 111.75 м2
Жилая площадь: 72.01 м2
Высота здания: 7.59 м
Размеры дома: 9.08м×11.18м
Кол-во комнат: 5
Цокольный этаж: нет
Гараж: нет
Мансарда: есть

Kонструкция
Фундамент: Свайно-ростверковый
Перекрытия: Деревянные
Материал стен: Газобетон

Архитектурный раздел
Конструктивный раздел
Инженерный раздел
АР+КР - 48 000 (Со скидкой 20%)
АР+КР+ИР - 87 200 (Со скидкой 50%)
Проект индивидуального одноэтажного одноквартирного жилого дома с мансардой с размерами здания 9,08 x 11,18 м. Наружная отделка здания – сайдинг. Фундамент - свайно-ростверковый (буронабивной). Наружные стены – газобетонные блоки, утеплитель - базальтовая вата с облицовкой сайдингом. Внутренние стены - газобетонные блоки. Перегородки на первом этаже из газобетонных блоков, на мансарде ГКЛ на металлическом каркасе. Снаружи вентканалы и дымоходы - сайдинг. Перемычки - монолитные и сварные из профиля проката. Перекрытие межэтажное - по деревянным балкам с использованием теплошумоизоляционных материалов типа "URSA" в межбалочном пространстве, пол первого этажа - пол по грунту. Пол первого этажа - пол по грунту. Крыша двухскатая. Кровля - металлочерепица. Окна - металлопластиковые, выполненные по индивидуальному заказу.
Генплан застройки участка / Паспорт проекта 7000 руб / 10000 руб
Инженерный раздел (полный) 39200 руб (56000 руб)
Смета на строительство 28000 руб
Теплотехнический расчет материалов стен Бесплатно
Стоимость проекта со незначительнми изменениями 57200 руб
Стоимость проекта со средними изменениями* 65600 руб
Стоимость проекта со значительными изменениями** 67800 руб

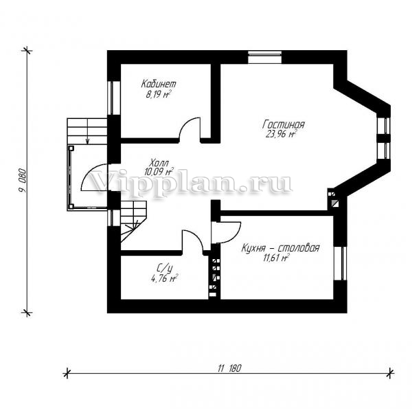
План первого этажа


Гостиная — 23,96 кв м
Кухня — 11,61 кв м
Холл — 10,09 кв м
Кабинет — 8,19 кв м
С/у — 4,76 кв м

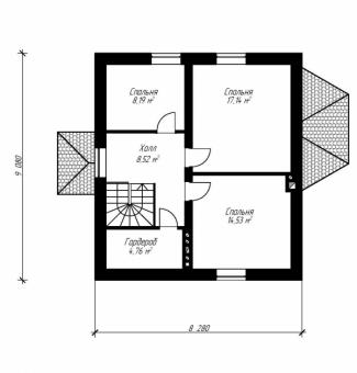
План мансардного этажа


Спальня — 8,19 кв м
Спальня — 17,14 кв м
Холл — 8,52 кв м
Спальня — 14,53 кв м
Гардероб — 4,76 кв м
Дом с мансардой и эркером Дом с мансардой и эркером Дом с мансардой и эркером Дом с мансардой и эркером
Внесение изменений и привязка к участку строительства

В любой из проектов от компании VIPplan - Электросталь по вашему желанию могут быть внесены изменения в материалы стен, материалы наружной отделки дома, а также будет произведена адаптация проекта под конкретный регион строительства (с учетом грунтов региона, геологических особенностей вашего участка и местных климатических условий) - БЕСПЛАТНО !!! (кроме проектов со скидкой и проектов наших партнеров).

Любой из проектов, размещенных на сайте elektrostal.vipplan.ru мы можем выполнить из требуемых вам строительных материалов: ячеистый бетон (газобетон, пеноблок), керамоблок, кирпич, шлакоблок, бетонный блок, дерево (брус, клееный брус), каркасная технология (деревянный каркас, металлокаркас (ЛСТК)).

Фасад дома и его наружную отделку так же возможно выполнить с применением различных облицовочных материалов: структурной штукатурки, (с утеплителем и без), сайдингом (пластиковый или металлосайдинг), фиброплитами, кирпича.

 
6 Избранные
проекты

Доставка проектов по России: Москва (Московская область), Санкт-Петербург (Ленинградская область), Краснодар, Ростов-на-Дону, Ставрополь, Сочи, Волгоград, Новосибирск, Белгород, Брянск, Воронеж, Саратов, Хабаровск, Астрахань, Нальчик, Владикавказ, Екатеринбург, Тюмень, Самара, Нижний Новгород, Казань, Пермь, Уфа, Челябинск, Красноярск, Ханты-Мансийск, Иркутск, Курган, Оренбург, Омск, Томск, Барнаул, Новокузнецк, Кемерово, Абакан, Чита, Якутск, Южно-Сахалинск, Петропавловск-Камчатский и страны ближнего зарубежья: Белоруссия, Украина, Казахстан