Добро пожаловать на http://vipplan.ru

Випплан Электросталь - это тысячи проектов домов в нашем каталоге!

Вы всегда сможете найти для себя проект дома вашей мечты! Даже если этого не случилось, мы готовы в любую минуту предложить проект индивидуального дома.

Забыли пароль?
Вы еще не регистрировались?

Перейдите по ссылке ниже на страницу регистрации.

Регистрация...

Внимание!!!

В проектную документацию могут быть внесены изменения любой сложности, в соответствии в Вашими пожеланиями!

Полезные статьи

Искусственный камень

Среди современных материалов, особого внимания заслуживает искусственный камень. Естественность и красота натурального камня очевидна. Но нужно реально оценивать свои возможности и присмотреться именно к искусственному камню, так как сам искуственный камень и стоимость производства работ с ним в Электростали значительно дешевле чем натуральный....

Выбор участка для строительства дома

Если вы решили приобрести участок земли и построить на нем дом или дачу. То данная статья специально для вас. А так же мы поможем вам в выборе проекта для выбранного вами участка....

Проекты домов и коттеджей > Каталог проектов домов > Дом с мансардой, гаражом, террасой и балконами Vg1094

Дом с мансардой, гаражом, террасой и балконами Vg1094

Дом с мансардой, гаражом, террасой и балконами
Зарегистрируйтесь

Проект № Vg1094


Техническое описание
Общая площадь: 146.15 м2
Жилая площадь: 73.66 м2
Высота здания: 9.24 м
Размеры дома: 13.62м×9.91м
Кол-во комнат: 5
Цокольный этаж: нет
Гараж: нет
Мансарда: есть

Kонструкция
Фундамент: Свайно-ростверковый (буронабивной)
Перекрытия: Деревянные
Материал стен: Газобетон

Архитектурный раздел
Конструктивный раздел
АР+КР - 52 000 (Со скидкой 20%)
Проект индивидуального одноэтажного двухквартирного жилого дома с мансардой с габаритными размерами 13,62x 9,91м. Наружная отделка здания - фасадная штукатурка двух цветов. Цоколь - камень. Фундамент - свайно-ростверковый (буронабивной). Наружные стены запроектированы из: пенополистиролбетонных блоков с отделкой фасадной штукатуркой. Внутренние стены - из пенополистиролбетонных блоков. Перегородки - ГКЛ на металлическом каркасе. Перемычки - монолитные и сварные из профиля проката. Перекрытие межэтажное - по деревянным балкам с использованием теплошумоизоляционных материалов типа "URSA" в межбалочном пространстве, пол первого этажа - пол по грунту. Крыша - многоскатная. Материал кровли - металлочерепица. Лестница - по металлическому каркасу, выполняется по индивидуальному заказу.
Генплан застройки участка / Паспорт проекта 7000 руб / 10000 руб
Инженерный раздел (полный) 73000 руб
Смета на строительство 36500 руб
Теплотехнический расчет материалов стен Бесплатно
Стоимость проекта со незначительнми изменениями 61350 руб
Стоимость проекта со средними изменениями* 72300 руб
Стоимость проекта со значительными изменениями** 75200 руб

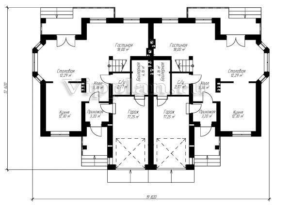
План первого этажа


Гостиная — 18,00 кв м
Столовая — 12,29 кв м
Кухня — 12,30 кв м
Холл — 5,36 кв м
Прихожая — 3,20 кв м
Бойлерная -—4,16 кв м
Гараж — 17,25 кв м
С/у — 2,77 кв м

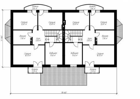
План мансардного этажа


Спальня — 12,69 кв м
Спальня — 12,87 кв м
Спальня — 18,70 кв м
Холл — 5,50 кв м
Ванная — 7,90 кв м
Кабинет — 11,40 кв м
Балкон — 2,25 кв м
Балкон — 3,64 кв м
Дом с мансардой, гаражом, террасой и балконами Дом с мансардой, гаражом, террасой и балконами Дом с мансардой, гаражом, террасой и балконами Дом с мансардой, гаражом, террасой и балконами

Модификации проектов

Внесение изменений и привязка к участку строительства

В любой из проектов от компании VIPplan - Электросталь по вашему желанию могут быть внесены изменения в материалы стен, материалы наружной отделки дома, а также будет произведена адаптация проекта под конкретный регион строительства (с учетом грунтов региона, геологических особенностей вашего участка и местных климатических условий) - БЕСПЛАТНО !!! (кроме проектов со скидкой и проектов наших партнеров).

Любой из проектов, размещенных на сайте elektrostal.vipplan.ru мы можем выполнить из требуемых вам строительных материалов: ячеистый бетон (газобетон, пеноблок), керамоблок, кирпич, шлакоблок, бетонный блок, дерево (брус, клееный брус), каркасная технология (деревянный каркас, металлокаркас (ЛСТК)).

Фасад дома и его наружную отделку так же возможно выполнить с применением различных облицовочных материалов: структурной штукатурки, (с утеплителем и без), сайдингом (пластиковый или металлосайдинг), фиброплитами, кирпича.

 
6 Избранные
проекты

Доставка проектов по России: Москва (Московская область), Санкт-Петербург (Ленинградская область), Краснодар, Ростов-на-Дону, Ставрополь, Сочи, Волгоград, Новосибирск, Белгород, Брянск, Воронеж, Саратов, Хабаровск, Астрахань, Нальчик, Владикавказ, Екатеринбург, Тюмень, Самара, Нижний Новгород, Казань, Пермь, Уфа, Челябинск, Красноярск, Ханты-Мансийск, Иркутск, Курган, Оренбург, Омск, Томск, Барнаул, Новокузнецк, Кемерово, Абакан, Чита, Якутск, Южно-Сахалинск, Петропавловск-Камчатский и страны ближнего зарубежья: Белоруссия, Украина, Казахстан