Добро пожаловать на http://vipplan.ru

Випплан Электросталь - это тысячи проектов домов в нашем каталоге!

Вы всегда сможете найти для себя проект дома вашей мечты! Даже если этого не случилось, мы готовы в любую минуту предложить проект индивидуального дома.

Забыли пароль?
Вы еще не регистрировались?

Перейдите по ссылке ниже на страницу регистрации.

Регистрация...

Внимание!!!

В проектную документацию могут быть внесены изменения любой сложности, в соответствии в Вашими пожеланиями!

Полезные статьи

Применение свайных фундаментов

Сваи представляют собой длинные стержни, погруженные глубоко в грунт или изготовленные непосредственно в грунте. Покупные сваи с одной стороны имеют заостренный конец, который забивается в почву с помощью специальной техники. Установка свай, изготовленных своими руками, предполагают бурение скважин, армирование и заливку бетонного раствора. ...

Перекрытия в доме

Перекрытия – одно из важнейших составляющих строящегося дома. Это горизонтальная внутренняя защитная конструкция, разделяющая по уровню смежные помещения дома. По назначению выделяют подвальные, межэтажные и чердачные перекрытия. При проектировании домов и зданий различного назначения, требования к межэтажным перекрытиям определяются их местоположением и функциями разделяемых помещений: надподвальные, межэтажные, чердачные и т.д....

Проекты домов и коттеджей > Каталог проектов домов > Двухэтажный дом с гаражом на 2 машины и террасой Vg977

Двухэтажный дом с гаражом на 2 машины и террасой Vg977

Двухэтажный дом с гаражом на 2 машины и террасой
Зарегистрируйтесь

Проект № Vg977


Техническое описание
Общая площадь: 314.09 м2
Жилая площадь: 101.84 м2
Высота здания: 10.25 м
Размеры дома: 21.28м×18.28м
Кол-во комнат: 6
Цокольный этаж: нет
Гараж: нет
Мансарда: нет

Kонструкция
Фундамент: ленточный монолитный ж/б
Перекрытия: монолитное ж/б
Материал стен: Кирпич

Архитектурный раздел
Конструктивный раздел
АР+КР - 84 000 (Со скидкой 20%)
Проект индивидуального двухэтажного одноквартирного жилого дома с размерами 21,28 x 18,28 м. Наружная отделка здания - облицовочный кирпич. Фундамент - ленточный монолитный ж/б. Наружные стены запроектированы из: газобетонных блоков 300мм, утеплитель — минераловатные плиты 120мм, облицовочный кирпич -120мм. Внутренние стены и перегородки - из газобетонных блоков. Перемычки - монолитные и сварные из профиля проката. Перекрытие над первым этажом – монолитное ж/б, пол первого этажа - пол по грунту. Чердачное перекрытие-по деревянным балкам с использованием теплошумоизоляционных материалов типа "URSA" в межбалочном пространстве. Крыша многоскатная. Материал кровли – мягкая кровля (битумная черепица). Лестница - по металлическому каркасу, выполняется по индивидуальному заказу.
Генплан застройки участка / Паспорт проекта 7000 руб / 10000 руб
Инженерный раздел (полный) 157000 руб
Смета на строительство 78500 руб
Теплотехнический расчет материалов стен Бесплатно
Стоимость проекта со незначительнми изменениями 97150 руб
Стоимость проекта со средними изменениями* 120700 руб
Стоимость проекта со значительными изменениями** 127000 руб

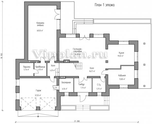
План первого этажа


Гараж — 32,50 кв м
Парилка — 5,76 кв м
Предбанник — 4,93 кв м
Холл — 4,01 кв м
Комната — 48,50 Гостевая — 16,01 кв м
Столовая — 34,65 кв м
Кухня — 19,03 кв м
Холл — 16,57 кв м
С/у — 5,75 кв м
Тамбур — 7,75 кв м
Кабинет — 13,80 кв м
Бойлерная — 6,16 кв м

Двухэтажный дом с гаражом на 2 машины и террасой

Двухэтажный дом с гаражом на 2 машины и террасой

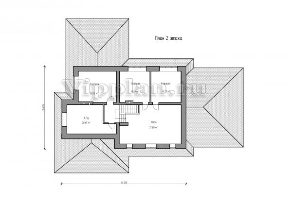
План второго этажа


Спальня — 20,35 кв м
Холл — 37,89 кв м
Спальня — 16,19 кв м
Спальня — 16,20 кв м
С/у — 20,65 кв м
Двухэтажный дом с гаражом на 2 машины и террасой Двухэтажный дом с гаражом на 2 машины и террасой Двухэтажный дом с гаражом на 2 машины и террасой Двухэтажный дом с гаражом на 2 машины и террасой

Модификации проектов

Внесение изменений и привязка к участку строительства

В любой из проектов от компании VIPplan - Электросталь по вашему желанию могут быть внесены изменения в материалы стен, материалы наружной отделки дома, а также будет произведена адаптация проекта под конкретный регион строительства (с учетом грунтов региона, геологических особенностей вашего участка и местных климатических условий) - БЕСПЛАТНО !!! (кроме проектов со скидкой и проектов наших партнеров).

Любой из проектов, размещенных на сайте elektrostal.vipplan.ru мы можем выполнить из требуемых вам строительных материалов: ячеистый бетон (газобетон, пеноблок), керамоблок, кирпич, шлакоблок, бетонный блок, дерево (брус, клееный брус), каркасная технология (деревянный каркас, металлокаркас (ЛСТК)).

Фасад дома и его наружную отделку так же возможно выполнить с применением различных облицовочных материалов: структурной штукатурки, (с утеплителем и без), сайдингом (пластиковый или металлосайдинг), фиброплитами, кирпича.

 
6 Избранные
проекты

Доставка проектов по России: Москва (Московская область), Санкт-Петербург (Ленинградская область), Краснодар, Ростов-на-Дону, Ставрополь, Сочи, Волгоград, Новосибирск, Белгород, Брянск, Воронеж, Саратов, Хабаровск, Астрахань, Нальчик, Владикавказ, Екатеринбург, Тюмень, Самара, Нижний Новгород, Казань, Пермь, Уфа, Челябинск, Красноярск, Ханты-Мансийск, Иркутск, Курган, Оренбург, Омск, Томск, Барнаул, Новокузнецк, Кемерово, Абакан, Чита, Якутск, Южно-Сахалинск, Петропавловск-Камчатский и страны ближнего зарубежья: Белоруссия, Украина, Казахстан