Добро пожаловать на http://vipplan.ru

Випплан Электросталь - это тысячи проектов домов в нашем каталоге!

Вы всегда сможете найти для себя проект дома вашей мечты! Даже если этого не случилось, мы готовы в любую минуту предложить проект индивидуального дома.

Забыли пароль?
Вы еще не регистрировались?

Перейдите по ссылке ниже на страницу регистрации.

Регистрация...

Внимание!!!

В проектную документацию могут быть внесены изменения любой сложности, в соответствии в Вашими пожеланиями!

Полезные статьи

Утепление стен дома изнутри

Утепление стен дома изнутри – это не правильный метод теплоизоляции помещения и используется в самом крайнем случае, когда других вариантов уже не остается. Как правило, утепление стен изнутри выполняется по незнанию или вынужденно, поскольку, теплоизоляция внутренних помещений дома другим способом невозможна. Вопросы теплоизоляции необходимо решать на стадии проектирования дома или коттеджа, а не тогда когда дом уже построен и приходится исправлять совершенные ошибки по факту....

Виды бассейнов

В наше время, строительство бассейна на территории своего участка, не такая уж и роскошь. Выбор видов и стилей бассейна, на сегодняшний день, очень большой....

Проекты домов и коттеджей > Каталог проектов домов > Дом с мансардой, подвалом, гаражом, террасой и балконом Vg975

Дом с мансардой, подвалом, гаражом, террасой и балконом Vg975

Дом с мансардой, подвалом, гаражом, террасой и балконом
Зарегистрируйтесь

Проект № Vg975


Техническое описание
Общая площадь: 235.55 м2
Жилая площадь: 93.1 м2
Высота здания: 9.44 м
Размеры дома: 12.59м×12.02м
Кол-во комнат: 6
Цокольный этаж: нет
Гараж: нет
Мансарда: есть

Kонструкция
Фундамент: ленточный, монолитный ж/б
Перекрытия: сборные ж/б плиты
Материал стен: Кирпич

Архитектурный раздел
Конструктивный раздел
АР+КР - 64 000 (Со скидкой 20%)
Проект индивидуального одноквартирного одноэтажного жилого дома с мансардой с размерами здания 12,59 x 12,02 м. Наружная отделка здания - облицовочный кирпич, цоколь - отделка под камень. Кровля - гибкая черепица. Фундамент - ленточный, монолитный ж/б. Наружные стены дома: кирпич керамический забутовочный, вентзазор, облицовочный кирпич. Внутренние стены - кирпич керамический забутовочный. Вентканалы - кирпич керамический полнотелый. Снаружи вентканалы и дымоходы отделываются облицовочным кирпичом. Перегородки - кирпич керамический забутовочный. Перемычки - монолитные и сварные из профиля проката. Перекрытие над первым этажом - сборное (плиты перекрытий) ж/б, пол первого этажа - пол по грунту. Пол гаража - плиты перекрытий ж/б. В гараже предусматривается яма для осмотра автомобиля. Пол погреба - пол по грунту. Крыша - скатная. Материал кровли - гибкая черепица. Окна - металлопластиковые, выполненные по индивидуальному заказу. Лестница - выполняется по индивидуальному заказу. В гараже предусматривается лестница для спуска в погреб.
Генплан застройки участка / Паспорт проекта 7000 руб / 10000 руб
Инженерный раздел (полный) 118000 руб
Смета на строительство 59000 руб
Теплотехнический расчет материалов стен Бесплатно
Стоимость проекта со незначительнми изменениями 74100 руб
Стоимость проекта со средними изменениями* 91800 руб
Стоимость проекта со значительными изменениями** 96500 руб

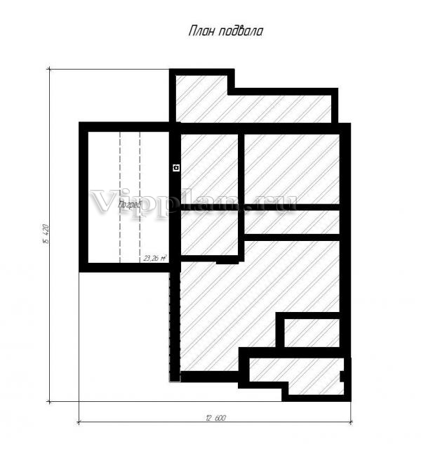
План цокольного этажа


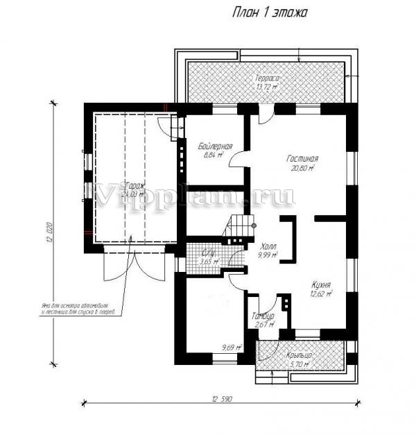
Терраса — 13,72 кв м
Гостиная — 20,80 кв м
Холл — 9,99 кв м
Кухня — 12,62 кв м
Тамбур — 2,67 кв м
С/у — 3,65 кв м
Крыльцо — 5,70 кв м
Бойлерная — 8,84 кв м
Гараж — 24,03 кв м
Гостевая — 9,69 кв м

План первого этажа


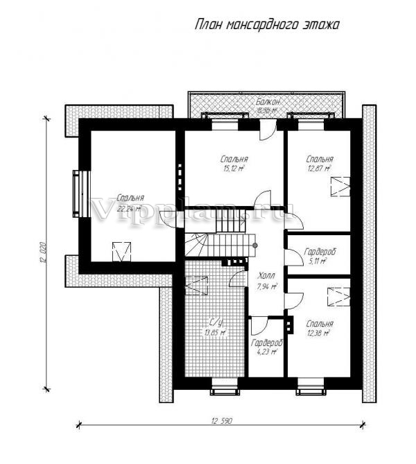
Балкон — 8,36 кв м
Холл — 7,94 кв м
Спальня — 12,38 кв м
Спальня — 12,87 кв м
Спальня — 15,12 кв м
Спальня — 22,24 кв м
Гардероб — 5,11 кв м
Гардероб — 4,23 кв м
С/у — 13,85 кв м

План мансардного этажа



Дом с мансардой, подвалом, гаражом, террасой и балконом Дом с мансардой, подвалом, гаражом, террасой и балконом Дом с мансардой, подвалом, гаражом, террасой и балконом Дом с мансардой, подвалом, гаражом, террасой и балконом

Модификации проектов

Внесение изменений и привязка к участку строительства

В любой из проектов от компании VIPplan - Электросталь по вашему желанию могут быть внесены изменения в материалы стен, материалы наружной отделки дома, а также будет произведена адаптация проекта под конкретный регион строительства (с учетом грунтов региона, геологических особенностей вашего участка и местных климатических условий) - БЕСПЛАТНО !!! (кроме проектов со скидкой и проектов наших партнеров).

Любой из проектов, размещенных на сайте elektrostal.vipplan.ru мы можем выполнить из требуемых вам строительных материалов: ячеистый бетон (газобетон, пеноблок), керамоблок, кирпич, шлакоблок, бетонный блок, дерево (брус, клееный брус), каркасная технология (деревянный каркас, металлокаркас (ЛСТК)).

Фасад дома и его наружную отделку так же возможно выполнить с применением различных облицовочных материалов: структурной штукатурки, (с утеплителем и без), сайдингом (пластиковый или металлосайдинг), фиброплитами, кирпича.

 
6 Избранные
проекты

Доставка проектов по России: Москва (Московская область), Санкт-Петербург (Ленинградская область), Краснодар, Ростов-на-Дону, Ставрополь, Сочи, Волгоград, Новосибирск, Белгород, Брянск, Воронеж, Саратов, Хабаровск, Астрахань, Нальчик, Владикавказ, Екатеринбург, Тюмень, Самара, Нижний Новгород, Казань, Пермь, Уфа, Челябинск, Красноярск, Ханты-Мансийск, Иркутск, Курган, Оренбург, Омск, Томск, Барнаул, Новокузнецк, Кемерово, Абакан, Чита, Якутск, Южно-Сахалинск, Петропавловск-Камчатский и страны ближнего зарубежья: Белоруссия, Украина, Казахстан