Добро пожаловать на http://vipplan.ru

Випплан Электросталь - это тысячи проектов домов в нашем каталоге!

Вы всегда сможете найти для себя проект дома вашей мечты! Даже если этого не случилось, мы готовы в любую минуту предложить проект индивидуального дома.

Забыли пароль?
Вы еще не регистрировались?

Перейдите по ссылке ниже на страницу регистрации.

Регистрация...

Внимание!!!

В проектную документацию могут быть внесены изменения любой сложности, в соответствии в Вашими пожеланиями!

Полезные статьи

Применение свайных фундаментов

Сваи представляют собой длинные стержни, погруженные глубоко в грунт или изготовленные непосредственно в грунте. Покупные сваи с одной стороны имеют заостренный конец, который забивается в почву с помощью специальной техники. Установка свай, изготовленных своими руками, предполагают бурение скважин, армирование и заливку бетонного раствора. ...

Искусственный камень

Среди современных материалов, особого внимания заслуживает искусственный камень. Естественность и красота натурального камня очевидна. Но нужно реально оценивать свои возможности и присмотреться именно к искусственному камню, так как сам искуственный камень и стоимость производства работ с ним в Электростали значительно дешевле чем натуральный....

Проекты домов и коттеджей > Каталог проектов домов > Проект дома с подвалом и мансардой Vg1035

Проект дома с подвалом и мансардой Vg1035

Проект дома с подвалом и мансардой
Зарегистрируйтесь

Проект № Vg1035


Техническое описание
Общая площадь: 173.04 м2
Жилая площадь: 72.22 м2
Высота здания: 9.2 м
Размеры дома: 13.24м×13.24м
Кол-во комнат: 5
Цокольный этаж: есть
Гараж: нет
Мансарда: есть

Kонструкция
Фундамент: Монолитная ж/б плита
Перекрытия: Монолитная плита перекрытия
Материал стен: Керамоблок

Архитектурный раздел
Конструктивный раздел
АР+КР - 56 000 (Со скидкой 20%)
Проект индивидуального одноэтажного жилого дома с подвалом и мансардой с размерами здания 13,24 x 13,24 м. Наружная отделка здания – фасадная штукатурка. Фундамент – монолитная ж/б плита и ленточный монолитный ж/б. Наружные стены – из керамических блоков с отделкой фасадной штукатуркой. Внутренние стены – из рядового кирпича. Перегородки – из рядового кирпича. Пол подвала – пол по фундаментной плите. Пол первого этажа – пол по монолитной плите перекрытия (над подвалом) и пол по грунту. Межэтажное перекрытие – монолитная плита перекрытия. Чердачное перекрытие – деревянные балки. Крыша – многоскатная. Кровля – битумная черепица. Окна – металлопластиковые.
Генплан застройки участка / Паспорт проекта 7000 руб / 10000 руб
Инженерный раздел (полный) 86500 руб
Смета на строительство 43250 руб
Теплотехнический расчет материалов стен Бесплатно
Стоимость проекта со незначительнми изменениями 65650 руб
Стоимость проекта со средними изменениями* 78700 руб
Стоимость проекта со значительными изменениями** 82100 руб

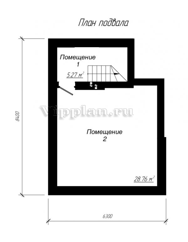
План цокольного этажа


Тамбур — 3,32 м2
Холл — 11,49 м2
Гостиная — 24,23 м2
Гостевая — 9,21 м2
Кухня — 8,46 м2
С/у — 4,08 м2
Кладовая — 1,16 м2
Бойлерная — 4,49 м2
Гараж — 29,30 м2

План первого этажа


Холл — 6,93 м2
Спальня — 11,51 м2
Спальня — 13,99 м2
Спальня — 13,28 м2
Гардероб — 4,08 м2
С/у — 7,73 м2
Балкон — 3,13 м2

План мансардного этажа



Проект дома с подвалом и мансардой Проект дома с подвалом и мансардой Проект дома с подвалом и мансардой Проект дома с подвалом и мансардой

Модификации проектов

Внесение изменений и привязка к участку строительства

В любой из проектов от компании VIPplan - Электросталь по вашему желанию могут быть внесены изменения в материалы стен, материалы наружной отделки дома, а также будет произведена адаптация проекта под конкретный регион строительства (с учетом грунтов региона, геологических особенностей вашего участка и местных климатических условий) - БЕСПЛАТНО !!! (кроме проектов со скидкой и проектов наших партнеров).

Любой из проектов, размещенных на сайте elektrostal.vipplan.ru мы можем выполнить из требуемых вам строительных материалов: ячеистый бетон (газобетон, пеноблок), керамоблок, кирпич, шлакоблок, бетонный блок, дерево (брус, клееный брус), каркасная технология (деревянный каркас, металлокаркас (ЛСТК)).

Фасад дома и его наружную отделку так же возможно выполнить с применением различных облицовочных материалов: структурной штукатурки, (с утеплителем и без), сайдингом (пластиковый или металлосайдинг), фиброплитами, кирпича.

 
6 Избранные
проекты

Доставка проектов по России: Москва (Московская область), Санкт-Петербург (Ленинградская область), Краснодар, Ростов-на-Дону, Ставрополь, Сочи, Волгоград, Новосибирск, Белгород, Брянск, Воронеж, Саратов, Хабаровск, Астрахань, Нальчик, Владикавказ, Екатеринбург, Тюмень, Самара, Нижний Новгород, Казань, Пермь, Уфа, Челябинск, Красноярск, Ханты-Мансийск, Иркутск, Курган, Оренбург, Омск, Томск, Барнаул, Новокузнецк, Кемерово, Абакан, Чита, Якутск, Южно-Сахалинск, Петропавловск-Камчатский и страны ближнего зарубежья: Белоруссия, Украина, Казахстан